GJ941X电动管夹阀
- 销售:
- 销售:
- 传真:
详情介绍
- 产品介绍
- 服务承诺
- 订货流程
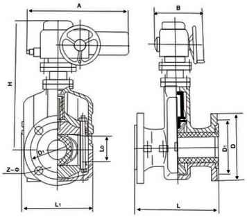
GJ941X型电动管夹阀适用内外受酸浸蚀的环境下,保持正常工作。杜绝内泄外漏,方便清槽工作,实践证明,它取代了不锈钢夹子,结束了采用球阀旋塞阀或其它阀门历史,电动管夹阀又名电动夹管阀,电动胶管阀,由电动装置,左右阀体,橡胶管套、大小阀杆、上下闸板、导柱等零件组成。也可按客户要求,采用其他驱动方式如手动、气动等方式,也可按客户需求定制非标产品。
主要零件材质
名称 | 材料 |
阀体 | 铝合金、铸铁 |
套管 | 橡胶 |
阀杆 | 铸铜、碳钢 |
压杆 | 球墨铸铁 |
电动头 | 组合件 |
托架 | 球墨铸铁 |

主要外形连接尺寸
公称 通径 (DN) | 公称 压力 (MPa) | 工作 压力 (MPa) | L | L1 | L0 | D | D1 | Z-Φ | H | 电动装置 |
| ||||
型号 | A | B | D0 | kw |
| ||||||||||
25 | 0.6 | 0.6 | 160 | 124 | 31 | 115 | 85 | 4-14 |
| ZA5-14 | 443 | 133 |
| 0.12 | 18 |
32 | 165 | 145 | 40 | *140 | 100 | 4-18 |
|
|
|
|
|
|
| ||
40 | 190 | 157 | 50 | *150 | 110 | 4-18 |
|
|
|
|
|
|
| ||
50 | 210 | 160 | 60 | 160 | 125 | 4-18 |
| ZA10-18 | 552 | 425 |
| 0.25 | 71 | ||
65 | 250 | 199 | 74 | 180 | 145 | 4-18 |
| ZA15-15 | 552 | 425 | 305 | 0.37 | 80 | ||
80 | 300 | 222 | 88 | 195 | 160 | 4-18 |
| ZA30-18 | 552 | 425 | 305 | 0.75 | 92.9 | ||
100 | 350 | 250 | 106 | 215 | 180 | 8-18 |
| ZA30-18 | 552 | 425 | 305 | 0.75 | 101 | ||
125 | 430 | 318 | 134 | 245 | 210 | 8-18 |
|
|
|
| 305 |
|
| ||
150 | 500 | 350 | 158 | 280 | 240 | 8-23 | 1000 |
|
|
|
|
|
| ||
200 | 0.4 | 0.4 | 650 | 446 | 206 | 335 | 295 | 8-23 | 1174 | ZA14-18 | 766 | 390 | 305 | 1.1 | 265 |
250 | 800 | 516 | 256 | *395 | 350 | 12-23 |
|
|
|
|
|
|
| ||
300 | 950 | 562 | 304 | *445 | 400 | 12-23 |
|
|
|
|
|
|
| ||
采用标准 设计与制造:Q/JBGN02 结构长度:Q/JBGN02 法兰连接尺寸:JB78(PN1.0MPa | |||||||||||||||
良好的品质、优良的服务 开云手机官方站登录入口-开云(中国)为你创造更多价值!
“开云手机官方站登录入口-开云(中国)”的期望,不断提升服务质量,精益求精,“真诚的服务”是“开云手机官方站登录入口-开云(中国)”永恒的主题。“开云手机官方站登录入口-开云(中国)”严格按照IS09001-2000 质量体系认证要求,质量严格把关, 责任到人,确保生产、销售、服务的健康运行。加强与用户沟通,竭诚为广大客户提供优良产品,至善至美服务。特此我厂做出以下承诺:
产品标准:
产品严格按照中国GB、HG 标准和美国API等标准设计、制造、验收。密封面硬度达到国家规定要求,宽度超过国家标准。
售前服务:
产品介绍,技术交流,非标产品设计,疑难解答。
售中服务:
守信合同,保证及时供货,随时保持与客户联系。 对特殊或复制的产品,我厂安排技术人员对用户进行产品使用、故障排除
售后服务:
1、“开云手机官方站登录入口-开云(中国)”牌产品品质期为自出厂起12个月,实行“三包”服务(包退、包换、保修)。
2、产品在使用中我厂定期组织技术、质检人员进行访问,征询用户对产品质量、 使用状况、改进意见等方面的反馈, 以便进一步提高产品质量。
3、对用户投诉质量问题,快速作出反应,售后服务人员在24-36小时(省外48小时)赶赴现场。
4、对售后服务,要求用户填写服务后的质量反馈信息表,并作出鉴定意见,以便提高开云手机官方站登录入口-开云(中国)的服务质量。
1、客户如对产品有特殊要求,须在订货合同中提供以下说明:
a、结构长度;
b、连接形式;
c、公称直径、全通径、缩径、管道尺寸;
d、运行介质及温度、压力范围;
e、试验、检验标准及其他要求
2、本厂可根据客户特定要求配置各类驱动装置。
3、如由客户提供确定的阀门类型和型号时,客户应正确说明其型号的含义和要求,在供需双方理解一致的条件下签订合同。
4、期货、订货的客户请先来电函详细告诉所需的阀门型号、规格、数量以及交货时间、地点,并按总的30%预定金或全额货款及时汇入我厂帐户,其余货款待发货前汇入,以便及时安排发货。
订单流程:
1、客户采购清单传真至,或来电咨询
2、收到客户采购清单,为客户提供阀门型号选型与报价(价格清单)。
3、具体商定:交货期、特殊要求等事宜。
订货须知:
1、客户如对产品有特殊要求,须在订货合同中提供以下说明:
|
|||||
|
|||||
2、本厂可根据客户特定要求配置各类驱动装置。
|
|||||
3、如由客户提供确定的阀门类型和型号时,客户应正确说明其型号的含义和要求,在供需双方理解一致的条件下签订合同。
|
|||||
4、期货、订货的客户请先来电函详细告诉所需的阀门型号、规格、数量以及交货时间、地点,并按总的30%预定金或全额货款及时汇入我厂账户, 其余货款待发货前汇入,以便及时安排发货。
|
售中服务:
守信合同,保证及时供货,随时保持与客户联系。
对特殊或复制的产品,我厂安排技术人员对用户进行产品使用、故障排除
售后服务:
1、“开云手机官方站登录入口-开云(中国)”产品品质期为自出厂起12个月,实行“三包”服务(包退、包换、保修)。
2、产品在使用中我厂定期组织技术、质检人员进行访问,征询用户对产品质量、使用状况、改进意见等方面的反馈,
以便进一步提高产品质量。
3、对用户投诉质量问题,快速作出反应,售后服务人员在24-36小时(省外48小时)赶赴现场。
4、对售后服务,要求用户填写服务后的质量反馈信息表,并作出鉴定意见,以便提高“开云手机官方站登录入口-开云(中国)”的服务质量。
声明 |
|